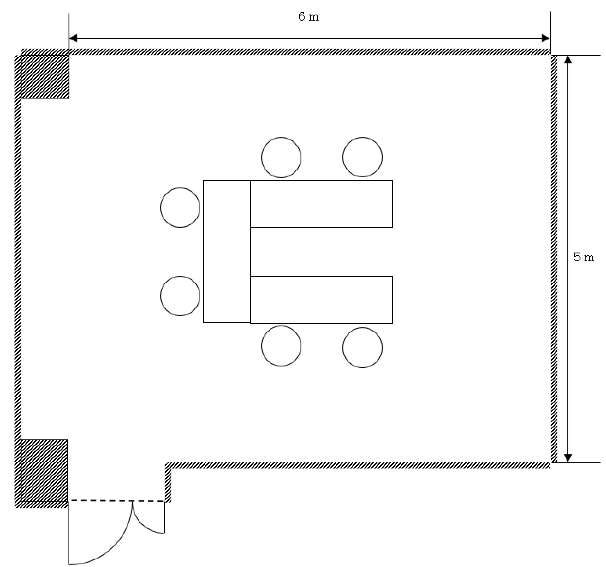
小会議室2
- 広さ
- 約6m×5m
- 対応人数
- 18名程度
- 利用可能備品
有料備品
- ・端末装置(パソコン)
- ・ホワイトボード
- ・レーザーポインタ(緑)
- ・データプロジェクター
- ・電源基本料
- ・オンライン会議システム
- ・オンラインセミナーシステム
- ・横断幕作成
無料備品
- ・55インチモニター
- ・テーブル
- ・OAテーブル
- ・150cmテーブル
- ・コーナーテーブル
- ・イス(会議用:グレー)
- ・イス(レセプション用:白)
- ・演台
- ・花台
- ・パーテーション
- ・コートハンガー
- ・移動式スクリーン
- ・プロジェクターの台
- ・ドラムコード
- ・ポット
- ・水差し
- ・おしぼり
- ・無料Wi-Fi
- ・アクリルパーテーション
- ・延長コード
- ・NWC/HDMIケーブル(5m)
- PC持込等で電源が必要な場合、1機材につき電源基本料1口かかります。
- お選びいただいたテーブルプランはこちらでご準備します。
- テンプレート以外でご利用希望の場合にはご連絡にてご相談下さい。










